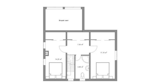
Maison Ossature Bois Type Grange 102 m2

101 600,00 €

Maison Ossature Bois Type Grange 102 m2

Ce modèle de maison est obligatoirement construite sur place par nos équipes, il n'est pas possible de livrer en Kit Auto-Construction, ce modèle demande de l'expérience, de la maîtrise dans la construction et de montage.

Dimensions de la construction :

- 9 m x 9 m / 2 chambres / Avec Mezzanine Grange /  

+ Terrasse Comprise 11,20m2

Projet personnalisé déjà réalisé par Prosto House en Europe.

Livrée hors d'eau hors d'air, sera montée par une entreprise Française avec décennnale (le montage de la maison est obligatoire, (prix de la pose en Sus du prix), entreprise qualiifiée et fomée par notre équipe de montage (projet seulement sur demande).

Livraison France comprise

Hors Fondations - Hors Réseaux - Hors Finitions intérieures

Le prix Comrend : 

  1. Ossature bois complète (Plateforme, murs et toiture),
  2. Plancher OSB 10/22 mm,
  3. Toiture Bac acier, d'autres options de toiture sur demande 
  4. Bardage murs en bac acier, mélange bardage métal et bois en fonction des modèles, ou bois naturel au choix en option pour les murs. (Douglas, mélèze...)
  5. Terrasse et bois compris (Pin), d'autres options au choix
  6. Menuiseries complètes PVC triple vitrage (option possible sur demande, type d'ouverture, aluminium),
  7. Pare-vapeur et membrane étanchéité
  8. Isolation comprise laine minerale de basalte (200mm au sol et 150 mm murs/plafond), possibilité d'augmentation en option de 50 mm ou 100 mm, ou bien même de changer par un isolant plus performant (laine de bois) sur demande.