Maison moderne Toit plat 95 m2 / Maison Ossature Bois

95 640,00 €

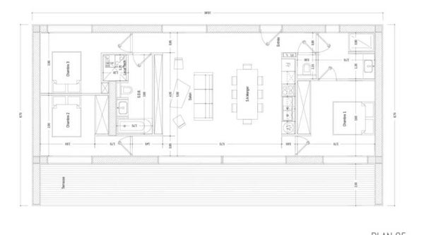
Maison Moderne à Toit plat 95 m2

Ce modèle de maison est obligatoirement construite sur place par nos équipes, il n'est pas possible de livrer en Kit Auto-Construction, ce modèle demande de l'expérience et de la maîtrise dans la construction et le montage.

Dimensions de la construction :

- 16,8 m x 6 m / 3 chambres 

Projet personnalisé déjà réalisé par Prosto House en Europe.

Livrée hors d'eau hors d'air, sera monté par notre équipe avec décennnale (le montage de la maison est obligatoire, entreprise qualifiée (Projet seulement sur demande et frais de réalisation d'esquisse de projet en SUS du prix à 35€/m2 obligatoire).

 

Livraison France comprise

Hors Fondations - Hors réseaux - Hors Finitions intérieures

 

Le prix Comprend : 

  1. Montage + Garantie décennale
  2. Ossature bois complète (Plateforme, murs et toiture),
  3. Plancher OSB 10/22 mm,
  4. Toiture Bac acier, d'autres options de toiture sur demande 
  5. Bardage murs en bac acier, mélange bardage métal et bois en fonction des modèles, ou bois naturel au choix en option pour les murs. (Douglas, mélèze...)
  6. Terrasse et bois compris (Pin), d'autres options au choix
  7. Menuiseries complètes PVC triple vitrage (option possible sur demande, type d'ouverture, aluminium),
  8. Pare-vapeur et membrane étanchéité
  9. Isolation comprise : Laine de roche (200 mm au sol et 150 mm murs + Toiture), possibilité d'isolation renforcée en option de + 50 mm ou + 100 mm.

Ce modèle de maison est obligatoirement construite sur place par nos équipes, il n'est pas possible de livrer en Kit Auto-Construction, ce modèle demande de l'expérience et de la maîtrise dans la construction et le montage.