🏡 Maisons en Ossature Bois Préfabriquées

Nos modèles standards sont disponibles en kit pour auto-construction (prix direct fabricant) ou livrés et montés en France 🇫🇷 par notre collaborateur de pose avec garantie décennale (tarifs mise à jour prochainement).

Toutes nos maisons sont conçues avec :

  • Ossature bois moderne et murs isolés (jusqu’à 200 mm d’isolant de base, options +50 mm ou +100 mm)
  • Menuiseries triple vitrage et structure conforme aux normes européennes
  • Convient à un usage résidence principale, secondaire ou locatif

🏠 Résidence principale et RE 2020

Pour toute maison de plus de 50 m² destinée à l’habitation principale, la réglementation RE 2020 s’applique.
Découvrez notre article complet :

Nous proposons des partenaires pour vous accompagner :

⚙️ Vos options

  1. Option 1 – Kit Auto-Construction : pièces numérotées, plans détaillés, assistance possible par un superviseur Prosto House. 💶 Prix direct fabricant.
  2. Option 2 – Livraison + Montage en France : réalisé par notre partenaire de pose avec décennale sur le montage (hors d’eau / hors d’air). 💶 Nouveau tarif à venir.
  3. Option 3 – Projet avec CCMI : en partenariat avec un constructeur français pour montage + finitions avec garantie bancaire et décennale complète.

Maison Bois en Kit 50 m2  / Studio de Jardin Habitable

Location courte durée / Investissement Locatif

Kit maison Ossature Bois Hors d'eau / Hors d'air

Fabrication Européenne

Entreprise Française + Garantie décennale pour le montage 

 

Moderne et spacieux à la fois, cette maison en ossature bois peux être construite en petite maison pour deux personnes ou trois personnes, ou même en Studio de Jardin de 52 m² de surface intérieure + une terrasse de 20 m2 comprise que vous pouvez construire vous même.



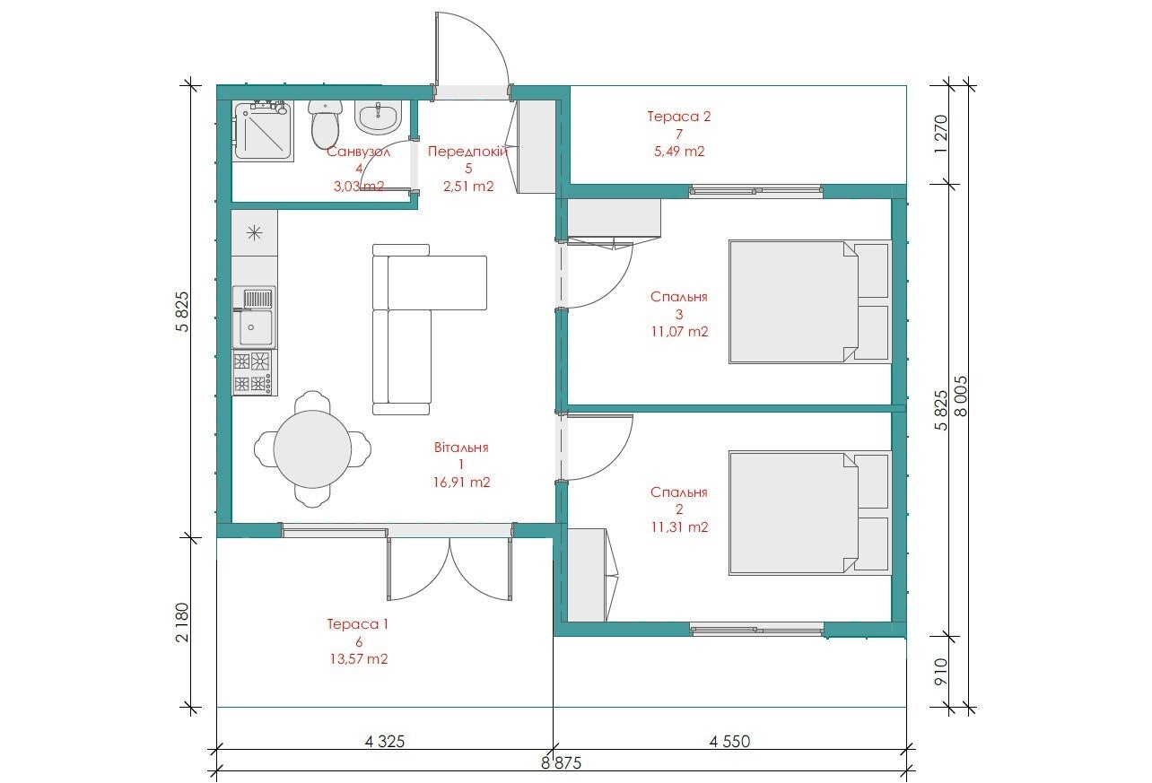
📐 Surface / Dimensions : L 8,90 m x l 8 m

  • Emprise au sol construction :  72 m² Terrasse comprise
  • Surface Total Brut intérieure est de  52 m2 
  • Terrasse couverte : 20 m²

 

Ce modèle offre deux versions : 


Une hauteur de plafond au choix de 2,20 m de haut ou bien 2,70 m de haut.

 

 

 

🏷 Prix : 3 Formules disponibles 

 

Kit standard Hors d’eau / Hors d’air 

Version Auto-Construction :  33 900 € TTC H 2,20 m

Version Auto-Construction :  35 900 € TTC H 2,70 m

👉 Livré prêt à assembler, avec plans, notice détaillée étape par étape et accessoires + quincaillerie complète. (sabots, équerre, visserie, bande et mousse isolante,...

🧰 Idéal pour auto-constructeurs souhaitant un projet maîtrisé et très économique.




Kit Standard Hors d’eau / Hors d’air 

Version Livré / Monté  + Habillage Bois et Cloisons bois 

55 900 € TTC (Garantie décennale incluse) H 2,20 m

60 700 € TTC (Garantie décennale incluse) H 2,70 m

👉 Montage : Maison Hors d'eau Hors d'air + Habillage bois intérieur (Épicéas) Murs / Plafond + Cloisons bois et kit poteau + Isolant 100 mm + Passages gaines électriques & Conduites eaux froides et eaux chaudes plomberie.

       ✨ La solution Confort tout en restant économique : votre maison bois montée et en partie aménager.

🔧 Pose assurée par notre partenaire français certifié (Diplôme ossature bois) + Équipe de monteurs (non sous-traitants)

 

Kit Standard Hors d’eau / Hors d’air 

Version Livré / Monté + Toutes options de finitions intérieures

65 600€ TTC (Garantie décennale incluse) H 2,20 m 

70 400€ TTC (Garantie décennale incluse) H 2,20 m

👉 Montage : Maison Hors d'eau Hors d'air + Finitions intérieures complètes : Boiseries, Cloisons, Electricité complète, Plomberie complète, Pose sanitaires, Cuisine, Climatisation, Peinture boiserie, Sol stratifié, Portes intérieures.

✨ La solution Confort + : votre maison bois montée et toutes finitions intérieures.


🛠️
Hors fondations / Hors réseaux :


✔️ Pieux vissés ou plots béton possibles sont au choix dés le départ par le client : pour structure sur pilotis jusqu'à 100 m2 pour nos modèles 

Un plan de fondation vous est fourni pour chaque modèle pour les préparer celle ci avant la livraison de votre maison en KIT


🛠️ Hors Livraison :

Calculé selon adresse de livraison du chantier

 

 

Inclus dans le kit Standard :

  • Ossature bois complète (murs, toiture, plancher)
  • Plancher OSB 10/22 mm
  • Isolation : (Laine de roche) Sol 200 mm, Murs & Toiture 150 mm (Options isolation renforcée +50 mm / +100 mm)
  • Pare-vapeur + Membrane hydro-barrière
  • Menuiseries triple vitrage PVC (Alu, Coulissant, options couleur possibles)
  • Bardage Bois (Pins): façades avant + arrière
  • Bardage Bac acier toiture + murs latéraux 
  • Terrasse bois : Lames bois (Pins)+ Habillage bois pignons
  • Quincaillerie et Accessoires
  • Plans & notice de montage
  • Plan de fondation fourni

 

 

✳ Options & personnalisations possibles :

  • Isolation renforcée ou isolant alternatif (ouate de cellulose, laine de bois, etc.)
  • Menuiseries anthracite et vitrage teinté
  • Fenêtres ou porte supplémentaires supplémentaires
  • Escalier mezzanine
  • Pergola 
  • Extension de terrasse
  • Choix du bardage (bois, bac acier, fibrociment…)

 

 

🏛 Conformité, fondations & garanties :

Nos maisons répondent aux DTU 31.2 / 51.3, conception basée sur les Eurocodes, composants certifiés CE, et adaptables à la RE2020 via nos partenaires bureau d’études bois : si besoin adaptation de structure aux régions exposés (Vent, séisme, neige) et thermique :  Thermicien conseil de choix de matériaux, chauffage, VMC...

 

Pourquoi ?

 "Nos maison ossatures : Répondent aux exigences techniques"

 

💪 Garantie décennale possible sur version montée (structure, couverture, étanchéité).

Isolation & Menuiseries conformes aux exigences RT 2020

Garantie (auto-construction) : 10 ans ossature, 20 ans bardage, 3 ans menuiseries si préconisations de pose respectées 

Garantie décennale et Dommage ouvrage (Version montée) : Décennale structure, couverture & étanchéité

 

 

🚚 Livraison & montage :

Livraison France métropolitaine Tarif 1,50€ / km selon adresse du chantier 

Délai moyen : 30 à 40 jours après acompte

Montage par nos équipes possible (avec garantie décennale) frais de Déplacement équipe de montage 1€ HT / Km de l'atelier à l'adresse du chantier en Sus du prix du "kit maison" + Hébergement mobile 85€ HT / jour de montage

Terrassement, Réseaux et Fondations à la charge du client avant la livraison. Plan de fondation fourni

 

 

Fournitures Incluses dans la formule Livrée / montée

  • Fourniture et pose : Habillage Bois / Cloisons / Isolant / Electricité / Plomberie 
  • Pose / Hors Fourniture : Peinture, Sol stratifié + Cuisine + Climatisation + Portes intérieures + Sanitaires et salle de bain(receveur de douche, paroi, colonne, meuble vasque, chauffe-eau, toilette)

 

Il est préférable que le client choisisse les modèles ☺️


Quand passer commande de votre maison pour optimiser votre planning ?

Découvrez ici Les étapes clés de votre projet de construction

 

Chaque Modèle de Maison est livrée avec :

 

Notice d'assemblage détaillée étape par étape

+

Dossier complet avec schémas Techniques

 

Validé par le Bureau étude Bois Français

Normes et DTU / Etude structurelle

 

Découvrir ci dessous un exemple de dossier technique fourni :

Maison en A

Dossier Technique A Frame Pdf
PDF – 9,6 MB 144 téléchargements

Studio de Jardin Habitable

Kit Auto-Construction

Ou Livré / Monté

Pourquoi choisir

Notre KIT Studio de jardin ?

 

Notre KIT Studio de Jardin habitable est la solution idéale pour un hébergement moderne et chaleureux que soit pour un projet individuel, secondaire, ou maison de vacances, ou bien même un investissement locatif.

Disponible en auto-construction ou livré et monté par nos équipes, il s’adapte à votre budget et à votre projet.

 

💡 Auto-construction = économies sur le coût global
💡 Clé en main = tranquillité et finition impeccable

 

Conçu pour être facile à monter, notre kit offre une structure robuste et une excellente isolation, garantissant confort et durabilité.

 


Ce qui est inclus

Dans le KIT Studio de jardin Habitable

 

Ossature Bois complète (Plateforme 145 X 90 + Mur et Toiture 145 x 45 ) avec plancher OSB (12 & 22 mm) Pare vapeur + barrière isolante supplémentaire avant vos finitions de murs
Isolation du sol 200 mm pour un confort thermique optimal
Murs et plafonds préfabriqués pour un montage rapide (isolation 150 mm) 
Bardage extérieur anthracite & bois : esthétique moderne et durable
Terrasse bois incluse, idéale pour profiter pleinement de l’extérieur
Menuiseries PVC Triple vitrage : luminosité et isolation renforcées
Notice de montage détaillée pour une installation sans stress

Avec ces éléments, votre Studio de jardin en ossature bois est prêt à être assemblé sans mauvaise surprise !

 


Choisissez la tranquillité :

Option "Livré et Monté"

 

Profitez de notre service clé en main avec des options de finitions intérieurs à la carte adaptées selon vos besoins :

 

✔️ Montage complet par nos équipes
✔️ Fondations sur pieux pour une stabilité optimale
✔️ Options esthétiques : couleur des menuiseries, vitrage teinté
✔️ Confort renforcé : isolation supplémentaire (50 ou 100 mm)
✔️ Personnalisation intérieure : cloisons bois, habillage mural, sol stratifié
✔️ Aménagements complets : électricité, plomberie, pose cuisine, pose sanitaires salle de bain, sol stratifié,...

📌 Un Studio de Jardin sur mesure, adaptée à vos envies et à votre budget.

 


 

💬 Un projet en tête ?

Contactez-nous pour un devis personnalisé !

Photos Projet 3D 

Photos Kit monté + Montage


Plans


Plan intérieur

Vue de Face + Hauteur

Composition du

KIT Standard 

Structure - Plateforme

- Structure montant bois de section 145 x 45 mm (épaisseur 45 mm) forme des chambres de structure pour intégrer l'isolation au sol.

- Structure contour plateforme en panne/poutre de section 145 x 90 mm (épaisseur 90 mm) 

- Plaque OSB - 10 mm et 22 mm

- Membrane Superdiffusion Strotex 1300 (hydro-barrière)

- Grille Anti rongeurs

- Mastic bitume-caoutchouc 

- Revêtement de terrasse : lames en bois de pin 140 x 30 mm

- Quincailleries : un ensemble de matériaux de fixation (, connecteurs Bois...)

- Tout le bois de la charpente est traité avec une solution de protection contre les incendies (ignifuge)

 

Murs

- Les parois du cadre sont des chevrons transversales bois rabotés de section 145 x 45 mm (épaisseur 45 mm)

- Membrane Superdiffusion Strotex 1300 (hydro-barrière) pour toit en pente et isolé installé directement sur l'isolation, sans espace de ventilation. Elle peux être utilisé comme pare-vent dans les constructions à ossature. 

- Film pare-vapeur Strotex AL 90, le film est composé d'un couche supérieure (avec aluminium) qui reflète le rayonnement thermique et inférieure en film polyéthilène, il est utilisé comme couche isolante qui régule le niveau de vapeur dans les toits, les murs, les sols ou les plafonds.

- Chambres d'isolation + Lattage spécifique pour facilité la pose de bardage 

- Bardage Bac Acier Murs extérieur côté et toiture Panneau anthracite 0,45mm (Corée du Sud)

- Bardage Bois lames de pin Façade avant et arrière

- Ensemble de bandes spéciales

- Extrémités des pignons recouverts de bardage en bois tendre de 130 x 20 mm

- Ensemble de matériaux accessoires et quincaillerie 

Cette composition assure une structure de mur robuste et résistante au feu.

isolation

- L'isolation des murs et des plafonds : laine minérale non-combustible, calorifuge, hydrophobe, insonorisante, Izovat laine minérale de basalte avec une densité d'au moins

30 kg/m3.

- Epaisseur sol : 200 mm

- Epaisseur mur (toit) : 150 mm

Option : épaisseur supérieur disponible sur demande

Pour une épaisseur de 150 mm

Coefficient Thermique : 

R = 4,55 m2 K/W

En fonction de la conductivité thermique et pouvant atteindre plus de 5 avec une isolation renforcée

Sachant que l'option isolation renforcée permet d'augmenter de 50mm ou 100mm en plus de celle comprise dans le kit standard. 

Menuiseries

- Profilés PVC à cinq chambres d'isolation 70 mm  (blanc)

- Triple vitrage à haut rendement énergétique avec traitement anti-UV

- Porte de terrasse PVC 70 mm

- Livré avec accessoires 

- Le kit est livré avec de la bande et mousse isolante

Option de couleur du PVC possible (ex : gris anthracite) 

A savoir 

Le KIT comprend 

 

Structure complète : Préfabriquée sur mesure
Structure porteuse Ossature bois 
Structure Murs et Toiture Ossature bois
Plancher OSB (10 mm / 22mm)

Isolation Sol + Murs + Plafond

Pare-vapeur + Isolant membrane hydro-barrière
Menuiseries Triple vitrage
Bardage + Liteaux spécifiques + Contre Liteaux
Terrasse en bois de pin
Habillage extérieur en bois de pin inclus ( Selon modèle : Façade avant et arrière, ou mélange bois bardage...)
Accessoires et quincaillerie inclus

 


 

📌 À propos de la norme RE 2020

 

La norme RE 2020 fixe des objectifs pour construire des bâtiments plus économes en énergie et respectueux de l’environnement. Toutefois, elle n’interdit pas la construction de nos maisons en kit.

Il suffit que le projet respecte les règles en vigueur au moment du dépôt du permis de construire pour être autorisé.

Cela dit, pour améliorer le classement énergétique de la maison (et donc valoriser le bien pour l’avenir), il est conseillé de renforcer l’isolation et d’opter pour des équipements performants. Système de chauffage, Kit panneau solaire, chauffe eau solaire, VMC double flux, Poêle à bois ou climatisation réversible. Plus votre maison sera bien classée, mieux elle répondra aux attentes du marché et plus elle représentera un atout en cas de revente.

 


 

💡 Hébergement de l’équipe de montage 


Si aucun logement n’est disponible, nous proposons une solution mobile pour l’équipe, à 85 €/jour

(Délai de montage à définir selon le modèle)

 


 

⚒️ Fondations sur pieux

 

Le prix comprend seulement le nombre de pieux vissés prévus en quantité et selon notre plan de fondation prévu et fourni pour chaque modèle de maison.

Vous pouvez aussi choisir de faire le même nombre de pieux mais en béton

 Hors Location d'engin / Hors Terrassement

 

💰 Prix à partir de : ajusté selon le terrain.
⚠️ Modèle FJORD : nécessite une dalle béton comprise dans le tarif pour ce modèle

 


 

Installation électrique

 

📌 Inclus : Tableau électrique, câbles, gaines, prises et interrupteurs.
⚠️ Non inclus : Câble d’arrivée générale et luminaires.

 


 

🚰 Équipements de plomberie et sanitaires

 

📌 Inclus : Installation des conduites (hors arrivée générale et matériel sanitaire choisi par le client localement).
🔧 Option sur demande : Pose de la cuisine (hors électroménager), Pose sanitaires, douche, toilettes et lavabo possible

 


 

🏠 Finition intérieure

 

🪵 Habillage bois intérieur : Épicéa pour murs, plafond et cloisons.
📌 Inclus : Kit poteau bois et Cloisons adaptées au plan de base ou choisi par le client (personnalisé) et isolation intégrée.


💡 Option : Cloisons seule en bois (sans habillage bois des murs et du plafond) → 50 €/m²

Si vous décidez de faire une finition en plaque de plâtre par exemple

 


 

🪜 Sols & Portes

 

🛠️ Sols : Stratifié
🚪 Portes intérieures : 180 €/unité (3 incluses)
Option portes coulissantes (possible sur demande) :

Selon faisabilité technique.

 


 

❄️ Option Isolation renforcée

 

Déjà inclus : 200 mm au sol, 150 mm murs/toiture.

  • + 50 mm2 500 € (H 2,20 m) + 50 mm (H 2,70m) 2 950 €
  • + 100 mm5 000 € (H 2,20 m) + 100 mm (H 2,70 m) 5 900€

 


 

🪟 Option Menuiseries

 

🎯 Inclus :

  • Fenêtres panoramiques en façade avec une fenêtre 1 vantail avec serrure, avec des fixes selon modèle (exemple Grange, A-Frame), ou bien des fenêtres fixes plus ouvrante 1 Vantail pour d'autres (studio de jardin, Lodge, grange double, maison toit plat...).
  • Si vous souhaitez choisir d'autres types de menuiseries, nous adapterons le prix en fonction de votre choix.
  • Fenêtres intérieures (salle de bain, mezzanine, Toilettes) sont comprises de base mais la disposition en fonction de plan de base et la quantité est en fonction du modèle, les détails et dimensions sont indiqués dans chaque dossier technique fourni pour chaque modèle (voir exemple de dossier technique en PDF à téléchargé dans la page A-Frame.


🎨 Options couleurs 

  • Blanc standard, Gris anthracite (option) ou d'autres couleurs sur demande.

 

🚪 Fenêtres et Portes en option 

 

  • Fenêtre de toit : 760 €
  • Fenêtre latérale (pivotante/inclinable) 90 x 205 cm : 540 €
  • Fenêtre latérale (fixe) 90 x 205 cm : 500 €
  • Fenêtre latérale (pivotante/inclinable) 55 x 90 cm : 225 €
  • Porte d’entrée métal avec 2 serrures : 720 €
  • Porte d’entrée PVC supplémentaire : 660 €

 


 

🚧 Autres options

 

  • Échelle mezzanine : 350 €
  • Escalier (sur demande)
  • Pergola terrasse (sur demande)
  • Extension possible (A-Frame, Grange, Double Grange) par multiple de 1,20 m, et possible sur d'autres modèles sur demande en fonction de la faisabilité technique.

 


 

📜 Normes et garanties

 

Toutes nos maisons en bois respectent les normes de construction en vigueur, notamment les prescriptions du DTU 31.2 (construction de maisons à ossature bois).

Prosto House, fabricant et constructeur des maisons en kit que nous proposons propose le montage par sa propre équipe de montage et propose la garantie décennale sur la structure ossature bois , la couverture et l’étanchéité de la construction.

(En cours d'établissement de contrat Assurance)

 

En cas d’auto-construction, la garantie fabricant et fournisseur s’applique sur les éléments fournis :

Ossature bois : 10 ans

Bardage extérieur : 20 ans

Menuiseries extérieures : 3 ans

Dans ce cas vous devrez justifier du bon respect des préconisations de montage.

 


 

🚚 Livraison & Expédition

 

📦 Expédition sous 35 jours après réception de l’acompte.


🚛 Livraison en France (tarif au km)

– Possibilité de 2 maisons par camion


📖 Notice d’assemblage détaillée incluse


👷 Travaux extérieurs : Terrassement, parking et réseaux à prévoir via un artisan local.

Contact / Devis / Catalogue 

Cliquez ci dessous