Grange 42 m2 / Kit Maison préfabriquée / Ossature bois

24 900,00 €

🌲 La Grange 42

L’Architecture Barnhouse par Excellence


Le modèle de référence :
Idéal Maison de Vacances, Gîte Premium ou Résidence Secondaire

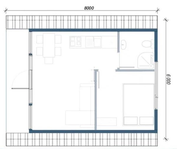
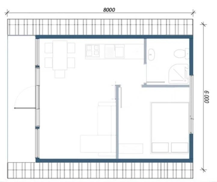
8m de Long – Ossature Bois – Façade Vitrée & Mezzanine

La Grange 42 incarne l'équilibre parfait de notre gamme "Barnhouse". Avec sa longueur de 8 mètres de base, elle offre un volume généreux et une esthétique iconique qui s'adapte à tous les paysages. Son design, inspiré des granges traditionnelles, est sublimé par un virage panoramique en façade pour une luminosité maximale.

Alors que la Grange 35 est sa version réduite (idéale pour rester sous les 20 m² de surface de plancher selon configuration), la Grange 42 constitue le point de départ de vos projets les plus ambitieux, tout en restant sous le seuil des 40 m² pour une Déclaration Préalable (DP) simplifiée en zone PLU.



Les points forts de La Grange 42 :

  • Modularité & Équilibre Esthétique : Ce modèle de 8 m peut être rallongé par tranches de 1,30 m pour atteindre 9,30 m ou 10,60 m. Cette limite de 10,60 m a été fixée pour préserver les proportions architecturales et l'élégance du design "Grange".

  • Volume Cathédrale & Espace : Profitez d'un salon sans plafond offrant une sensation d'espace incomparable. La structure en ossature bois permet de libérer de grands volumes pour une vie intérieure fluide et aérée.

  • Mezzanine Panoramique : Un espace en hauteur dédié au sommeil ou au travail, surplombant la pièce de vie et offrant une vue plongeante sur l'extérieur via la grande façade vitrée.

  • Design Hybride & Robuste : Un mélange moderne de Pin Nordique et de Bac Acier (côtés et toiture). Ce mix de matériaux assure une longévité exceptionnelle et un entretien réduit, avec la possibilité de personnaliser le bardage en 100% bois.

  • Rentabilité Locative Supérieure : Par sa taille et son style "Loft de campagne", la Grange 42 se positionne comme un hébergement haut de gamme sur le marché locatif, capable de déclencher un coup de cœur immédiat.



Qualité et Accompagnement :

Fabriqués avec soin, nos kits bénéficient d'un usinage de précision facilitant l'auto-construction avec une notice détaillée (Bois Pré-découpés, Numérotés, pour faciliter l'assemblage).

Nous vous accompagnons sur les aspects techniques et normatifs pour garantir la pérennité de votre projet. Leur structure légère permet une pose sur plots béton ou pieux vissés, limitant l'impact sur votre terrain.

👉 Tous les détails techniques :
Plans, surfaces, composition du kit, options et tarifs sont disponibles dans la "Fiche de présentation".


Si vous êtes déjà sur la page du modèle :

Cliquez sur " Télécharger notre Fiche de présentation " en haut de page.

Sinon : Cliquez sur " Découvrir le kit complet " en bas de page et retrouvez plus bas " Télécharger notre fiche de présentation ".