Vidéo du modèle :

Toit plat 50 m2 identique mais double

🏡 Maisons en Ossature Bois Préfabriquées

Nos modèles standards sont disponibles en kit pour auto-construction (prix direct fabricant) ou livrés et montés en France 🇫🇷 par notre collaborateur de pose avec garantie décennale (tarifs mise à jour prochainement).

Toutes nos maisons sont conçues avec :

  • Ossature bois moderne et murs isolés (jusqu’à 200 mm d’isolant de base, options +50 mm ou +100 mm)
  • Menuiseries triple vitrage et structure conforme aux normes européennes
  • Convient à un usage résidence principale, secondaire ou locatif

🏠 Résidence principale et RE 2020

Pour toute maison de plus de 50 m² destinée à l’habitation principale, la réglementation RE 2020 s’applique.
Découvrez notre article complet :

Nous proposons des partenaires pour vous accompagner :

⚙️ Vos options

  1. Option 1 – Kit Auto-Construction : pièces numérotées, plans détaillés, assistance possible par un superviseur Prosto House. 💶 Prix direct fabricant.
  2. Option 2 – Livraison + Montage en France : réalisé par notre partenaire de pose avec décennale sur le montage (hors d’eau / hors d’air). 💶 Nouveau tarif à venir.
  3. Option 3 – Projet avec CCMI : en partenariat avec un constructeur français pour montage + finitions avec garantie bancaire et décennale complète.

Qualité & Performance au cœur de nos constructions

✅ Ossature bois conforme aux normes françaises DTU 31.2 et 51.3
✅ Isolation haute performance conforme aux exigences RT 2020
✅ Menuiseries PVC triple vitrage pour un confort optimal

Votre maison ossature bois, solide, performante et durable.

Découvrir tous nos engagements

Maison Ossature bois de 103 m2 + Terrasse 40 m2

Kit maison moderne Double en ossature Bois Hors d'eau / Hors d'air

Fabrication Européenne

Entreprise Française + Garantie décennale pour le montage 


Moderne
et spacieuse à la fois, cette maison en ossature bois  de 103 m2 de surface intérieure + une terrasse de 40 m2 comprise que vous pouvez construire vous même pour une résidence principale ou secondaire et pourquoi pas divisé en deux appartements distincts en rajoutant tout simplement sur demande une cloison séparatrice.

 

 

📐 Surface / Dimensions : L 17,80 m x l 8 m

  • Emprise au sol construction :  143  Terrasse comprise
  • Surface Totale intérieure :  103 m2 Brut 
  • Terrasse :  40 m² + Lames de terrasse (Pins) comprises
  • Composé de trois espaces : Deux espaces : chambre de 26,5m2 chacune et une partie pièce de vie de 50 m2 environ



🏷 Prix : 3 Formules disponibles 

 

Kit standard Hors d’eau / Hors d’air 

Version Auto-Construction : 65 900 € TTC

👉 Livré prêt à assembler, avec plans, notice détaillée étape par étape et accessoires + quincaillerie complète. (sabots, équerre, visserie, bande et mousse isolante,...

🧰 Idéal pour auto-constructeurs souhaitant un projet maîtrisé et très économique.



Kit Standard Hors d’eau / Hors d’air 

Version Livré / Monté  + Habillage Bois et Cloisons bois 

 110 500 € TTC (Garantie décennale incluse) 

👉 Montage : Maison Hors d'eau Hors d'air + Habillage bois intérieur (Épicéas) Murs / Plafond + Cloisons bois et kit poteau + Isolant 100 mm + Passages gaines électriques & Conduites eaux froides et eaux chaudes plomberie.

✨ La solution Confort tout en restant économique : votre maison bois montée et en partie aménager.

🔧 Pose assurée par notre partenaire français certifié (Diplôme ossature bois) + Équipe de monteurs (non sous-traitants)

 

Kit Standard Hors d’eau / Hors d’air 

Version Livré / Monté + Toutes options de finitions intérieures

 123 900 € TTC (Garantie décennale incluse)

👉 Montage : Maison Hors d'eau Hors d'air + Finitions intérieures complètes : Boiseries, Cloisons, Electricité complète, Plomberie complète, Pose sanitaires, Cuisine, Climatisation, Peinture boiserie, Sol stratifié, Portes intérieures.

✨ La solution Confort + : votre maison bois montée et toutes finitions intérieures.


🛠️ Hors fondations / Hors réseaux :


Fondations adaptées à votre projet :

Il est essentiel de réaliser une étude de sol et que vous respectez les exigences prévus :

✔️ Pieux vissés ou plots béton possibles sont au choix dés le départ par le client : pour structure sur pilotis jusqu'à 100 m2 pour nos modèles 

Un plan de fondation vous est fourni pour chaque modèle pour les préparer celle ci avant la livraison de votre maison en KIT


🛠️ Hors Livraison :

Calculé selon adresse de livraison du chantier

 

 

Inclus dans le kit Standard :

  • Ossature bois complète (murs, toiture, plancher)
  • Plancher OSB 10/22 mm
  • Isolation : (Laine de roche) Sol 200 mm, Murs & Toiture 150 mm (Options isolation renforcée +50 mm / +100 mm)
  • Pare-vapeur + Membrane hydro-barrière
  • Menuiseries triple vitrage PVC (Alu, Coulissant, options couleur possibles)
  • Bardage Bois (Pins): façades avant + arrière
  • Bardage Bac acier toiture + murs latéraux 
  • Terrasse bois : Lames bois (Pins)+ Habillage bois pignons
  • Quincaillerie et Accessoires
  • Plans & notice de montage
  • Plan de fondation fourni

 

 

✳ Options & personnalisations possibles :

  • Isolation renforcée ou isolant alternatif (ouate de cellulose, laine de bois, etc.)
  • Menuiseries anthracite et vitrage teinté
  • Fenêtres ou porte supplémentaires supplémentaires
  • Escalier mezzanine
  • Pergola 
  • Extension de terrasse
  • Choix du bardage (bois, bac acier, fibrociment…)

 

 

🏛 Conformité, fondations & garanties :

Nos maisons répondent aux DTU 31.2 / 51.3, conception basée sur les Eurocodes, composants certifiés CE, et adaptables à la RE2020 via nos partenaires bureau d’études bois : si besoin adaptation de structure aux régions exposés (Vent, séisme, neige) et thermique :  Thermicien conseil de choix de matériaux, chauffage, VMC...

 

Pourquoi ?

 "Nos maison ossatures : Répondent aux exigences techniques"

 

💪 Garantie décennale possible sur version montée (structure, couverture, étanchéité).

Isolation & Menuiseries conformes aux exigences RT 2020

Garantie (auto-construction) : 10 ans ossature, 20 ans bardage, 3 ans menuiseries si préconisations de pose respectées 

Garantie décennale et Dommage ouvrage (Version montée) : Décennale structure, couverture & étanchéité

 

 

🚚 Livraison & montage :

Livraison France métropolitaine Tarif 1,50€ / km selon adresse du chantier 

Délai moyen : 30 à 40 jours après acompte

Montage par nos équipes possible (avec garantie décennale) frais de Déplacement équipe de montage 1€ HT / Km de l'atelier à l'adresse du chantier en Sus du prix du "kit maison" + Hébergement mobile 85€ HT / jour de montage

Terrassement, Réseaux et Fondations à la charge du client avant la livraison. Plan de fondation fourni

 

 

Fournitures Incluses dans la formule Livrée / montée

  • Fourniture et pose : Habillage Bois / Cloisons / Isolant / Electricité / Plomberie 
  • Pose / Hors Fourniture : Peinture, Sol stratifié + Cuisine + Climatisation + Portes intérieures + Sanitaires et salle de bain(receveur de douche, paroi, colonne, meuble vasque, chauffe-eau, toilette)

 

Il est préférable que le client choisisse les modèles ☺️

Quand passer commande de votre maison pour optimiser votre planning ?

Découvrez ici Les étapes clés de votre projet de construction

 

Chaque Modèle de Maison est livrée avec :

 

Notice d'assemblage détaillée étape par étape

+

Dossier complet avec schémas Techniques

 

Validé par le Bureau étude Bois Français

Normes et DTU / Etude structurelle

 

Découvrir ci dessous un exemple de dossier technique fourni :

Maison en A

Dossier Technique A Frame Pdf
PDF – 9,6 MB 95 téléchargements

Maison en ossature bois

Double toit plat

Kit Auto-Construction

Ou Livré / Monté

Pourquoi choisir

Notre KIT Maison double toit plat ?

 

Notre KIT maison moderne double toit plat est la solution idéale pour en faire votre propre maison, ou de vacances et pourquoi pas même un investissement locatif.

Moderne et esthétiquement tendance avec ce mélange de bois et de bardage, il est disponible en auto-construction ou livré et monté par nos équipes, il s’adapte à votre budget et à votre projet.

 

💡 Auto-construction = économies sur le coût global
💡 Clé en main = tranquillité et finition impeccable

 

Conçu pour être facile à monter, notre kit offre une structure robuste et une excellente isolation, garantissant confort et durabilité.

 


Ce qui est inclus

Dans le KIT Maison double toit plat

 

Structure ossature bois 145 x 90 mm et 145 X 45 avec plateforme OSB (12 & 22 mm) et isolant
Isolation du sol 200 mm pour un confort thermique optimal
Murs et plafonds préfabriqués (isolation 150 mm) pour un montage rapide
Bardage extérieur anthracite & bois : esthétique moderne et durable
Terrasse bois incluse, idéale pour profiter pleinement de l’extérieur
Menuiseries PVC double vitrage : luminosité et isolation renforcées
Notice de montage détaillée pour une installation sans stress

Avec ces éléments, votre maison bois est prêt à être assemblé sans mauvaise surprise !

 


Choisissez la tranquillité 

Option "Livré et Monté"

 

Profitez de notre service clé en main avec des options de finitions intérieurs à la carte adaptées selon vos besoins :

 

✔️ Montage complet par nos équipes
✔️ Fondations sur pieux pour une stabilité optimale
✔️ Options esthétiques : couleur des menuiseries, vitrage teinté
✔️ Confort renforcé : isolation supplémentaire (50 ou 100 mm)
✔️ Personnalisation intérieure : cloisons bois, habillage mural, sol stratifié
✔️ Aménagements complets : électricité, plomberie, pose cuisine, pose sanitaires salle de bain, sol stratifié, portes intérieures...

📌 Une Maison double toit plat moderne sur mesure, adapté à vos envies et à votre budget.

 


 

💬 Un projet en tête ?

Contactez-nous pour un devis personnalisé !


Photos 3D - Maison Double toit plat (incliné)



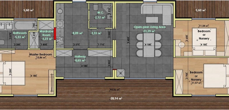
Plan intérieur

Nous proposons une idée d'implantation intérieur mais vu que l'option finition intérieur et les cloisons sont au choix, vous pourrez l'emménager à votre convenance.



Plan façade / Côtes Hauteur



Composition du Kit 

Auto-Construction

Kit Standard

Hors d'eau Hors d'air

à 65 900€


Structure

Plate-forme

- Structure montant bois de section 145 x 45 mm (épaisseur 45 mm) forme des chambres de structure pour intégrer l'isolation au sol.

- Structure contour plateforme en panne/poutre de section 145 x 90 mm (épaisseur 90 mm) 

- Plaque OSB - 10 mm et 22 mm

- Membrane Superdiffusion Strotex 1300 (hydro-barrière)

- Grille Anti rongeurs

- Mastic bitume-caoutchouc 

- Revêtement de terrasse : lames en bois de pin 140 x 30 mm

- Quincailleries : un ensemble de matériaux de fixation (, connecteurs Bois...)

- Tout le bois de la charpente est traité avec une solution de protection contre les incendies (ignifuge).

Structure

Murs / Toiture

- Les parois du cadre sont des chevrons transversales bois rabotés de section 145 x 45 mm (épaisseur 45 mm)

- Membrane Superdiffusion Strotex 1300 (hydro-barrière) pour toit en pente et isolé installé directement sur l'isolation, sans espace de ventilation. Elle peux être utilisé comme pare-vent dans les constructions à ossature. 

- Film pare-vapeur Strotex AL 90, le film est composé d'un couche supérieure (avec aluminium) qui reflète le rayonnement thermique et inférieure en film polyéthilène, il est utilisé comme couche isolante qui régule le niveau de vapeur dans les toits, les murs, les sols ou les plafonds.

- Chambres d'isolation + Lattage spécifique pour facilité la pose de bardage murs et toiture.

- Bardage Bac Acier Murs extérieurs côté et toiture Panneau anthracite 0,45mm (Corée du Sud)

- Bardage Bois lames de pin Façades avant et arrière

- Ensemble de bandes spéciales

- Extrémités des pignons recouverts de bardage en bois tendre de 130 x 20 mm

- Ensemble de matériaux accessoires et quincaillerie 

Cette composition assure une structure de mur robuste et résistante au feu.

Isolation

- L'isolation des murs et des plafonds : laine minérale non-combustible, calorifuge, hydrophobe, insonorisante, Izovat laine minérale de basalte avec une densité d'au moins

30 kg/m3.

- Epaisseur sol : 200 mm

- Epaisseur mur (toit) : 150 mm

Option : épaisseur supérieur disponible sur demande

Pour une épaisseur de 150 mm

Coefficient Thermique : 

R = 4,55 m2 K/W

En fonction de la conductivité thermique et pouvant atteindre plus de 5 avec une isolation renforcée

Sachant que l'option isolation renforcée permet d'augmenter de 50mm ou 100mm en plus de celle comprise dans le kit standard. 

Menuiseries

Profilés PVC à cinq chambres d'isolation 70 mm  (blanc)

- Triple vitrage à haut rendement énergétique avec traitement anti-UV

- Porte de terrasse PVC 70 mm

- Livré avec accessoires 

- Le kit est livré avec de la bande et mousse isolante

Option de couleur du PVC possible (ex : gris anthracite) 


Kit Standard

+

Montage

+

Finitions intérieures


Détail des options par prix 

Dans ce prix est inclus le kit standard

(hors d'eau hors d'air à 65 900 €)

+ Montage

+ Exemple d'options de finition intérieures

qui sont au choix et

Possible de livrer

CLEF EN MAIN 

(Pose sanitaires, Cuisine, Escalier, Peinture...)

(Attention ⚠️ Clef en main ne veux pas dire avec le mobilier intérieur)


Options Prix
Montage 21500
Fondations sur Pieux : Nombre de pieux prévus plan fondation (terrain plat), hors terrassement et hors engin 6100€
Menuiseries Anthracites 3100€
Vitrage teinté 1300€
Electricité 7400€
Plomberie 2380€
Cloisons + Isolation + Habillage Bois Murs / Plafond + Kit Poteau 16400€
Sol stratifié 3350
Portes intérieurs 180€ / unité 900

A Savoir

+

Options en +

Le KIT comprend 

 

Structure complète : Préfabriquée sur mesure
Structure porteuse Ossature bois 
Structure Murs et Toiture Ossature bois
Plancher OSB (10 mm / 22mm)

Isolation Sol + Murs + Plafond

Pare-vapeur + Isolant membrane hydro-barrière
Menuiseries Triple vitrage
Bardage + Liteaux spécifiques + Contre Liteaux
Terrasse en bois de pin
Habillage extérieur en bois de pin inclus ( Selon modèle : Façade avant et arrière, ou mélange bois bardage...)
Accessoires et quincaillerie inclus

 


 

📌 À propos de la norme RE 2020

 

La norme RE 2020 fixe des objectifs pour construire des bâtiments plus économes en énergie et respectueux de l’environnement. Toutefois, elle n’interdit pas la construction de nos maisons en kit.

Il suffit que le projet respecte les règles en vigueur au moment du dépôt du permis de construire pour être autorisé.

Cela dit, pour améliorer le classement énergétique de la maison (et donc valoriser le bien pour l’avenir), il est conseillé de renforcer l’isolation et d’opter pour des équipements performants. Système de chauffage, Kit panneau solaire, chauffe eau solaire, VMC double flux, Poêle à bois ou climatisation réversible. Plus votre maison sera bien classée, mieux elle répondra aux attentes du marché et plus elle représentera un atout en cas de revente.

 


 

💡 Hébergement de l’équipe de montage 


Si aucun logement n’est disponible, nous proposons une solution mobile pour l’équipe, à 85 €/jour

(Délai de montage à définir selon le modèle)

 


 

⚒️ Fondations sur pieux

 

Le prix comprend seulement le nombre de pieux vissés prévus en quantité et selon notre plan de fondation prévu et fourni pour chaque modèle de maison.

Hors Location d'engin / Hors Terrassement

 

💰 Prix à partir de : ajusté selon les contraintes du terrain.
⚠️ Modèle FJORD : nécessite une dalle béton (la pose comprise dans le tarif pour ce modèle hors béton et livraison)

 


 

Installation électrique

 

📌 Inclus : Tableau électrique, câbles, gaines, prises et interrupteurs.
⚠️ Non inclus : Câble d’arrivée générale et luminaires.

 


 

🚰 Équipements de plomberie et sanitaires

 

📌 Inclus : Installation des conduites (hors arrivée générale et matériel sanitaire choisi par le client localement).
🔧 Option sur demande : Pose de la cuisine (hors électroménager), Pose sanitaires, douche, toilettes et lavabo possible

 


 

🏠 Finition intérieure

 

🪵 Habillage bois intérieur : Épicéa pour murs, plafond et cloisons.
📌 Inclus : Kit poteau bois et Cloisons adaptées au plan de base ou choisi par le client (personnalisé) et isolation intégrée.


💡 Option : Cloisons seule en bois (sans habillage bois des murs et du plafond) → 50 €/m²

Si vous décidez de faire une finition en plaque de plâtre par exemple

 


 

🪜 Sols & Portes

 

🛠️ Sols : Stratifié
🚪 Portes intérieures : 180 €/unité (5 incluses)
Option portes coulissantes (possible sur demande) :

Selon faisabilité technique.

 


 

❄️ Option Isolation renforcée

 

Déjà inclus : 200 mm au sol, 150 mm murs/toiture.

  • + 50 mm 5 800 €
  • + 100 mm 11 600 €

 


 

🪟 Option Menuiseries

 

🎯 Inclus :

  • Fenêtres panoramiques en façade avec une fenêtre 1 vantail avec serrure, avec des fixes selon modèle (exemple Grange, A-Frame), ou bien des fenêtres fixes plus ouvrante 1 Vantail pour d'autres (studio de jardin, Lodge, grange double, maison toit plat...).
  • Si vous souhaitez choisir d'autres types de menuiseries, nous adapterons le prix en fonction de votre choix.
  • Fenêtres intérieures (salle de bain, mezzanine, Toilettes) sont comprises de base mais la disposition en fonction de plan de base et la quantité est en fonction du modèle, les détails et dimensions sont indiqués dans chaque dossier technique fourni pour chaque modèle (voir exemple de dossier technique en PDF à téléchargé dans la page A-Frame.


🎨 Options couleurs 

  • Blanc standard, Gris anthracite (option) ou d'autres couleurs sur demande.

 

 

🚪 Fenêtres et Portes en option 

 

  • Fenêtre de toit : 760 €
  • Fenêtre latérale (pivotante/inclinable) 90 x 205 cm : 540 €
  • Fenêtre latérale (fixe) 90 x 205 cm : 500 €
  • Fenêtre latérale (pivotante/inclinable) 55 x 90 cm : 225 €
  • Porte d’entrée métal avec 2 serrures : 720 €
  • Porte d’entrée PVC supplémentaire : 660 €

 


 

🚧 Autres options

 

  • Échelle mezzanine : 350 €
  • Escalier (sur demande)
  • Pergola terrasse (sur demande)
  • Extension possible (A-Frame, Grange, Double Grange) par multiple de 1,20 m, et possible sur d'autres modèles sur demande en fonction de la faisabilité technique.

 


 

📜 Normes et garanties

 

Toutes nos maisons en bois respectent les normes de construction en vigueur, notamment les prescriptions du DTU 31.2 (construction de maisons à ossature bois).

Prosto House, fabricant et constructeur des maisons en kit que nous proposons propose le montage par sa propre équipe de montage et propose la garantie décennale sur la structure ossature bois , la couverture et l’étanchéité de la construction.

(En cours d'établissement de contrat Assurance)

 

En cas d’auto-construction, la garantie fabricant et fournisseur s’applique sur les éléments fournis :

Ossature bois : 10 ans

Bardage extérieur : 20 ans

Menuiseries extérieures : 3 ans

Dans ce cas vous devrez justifier du bon respect des préconisations de montage.

 


🚚 Livraison & Expédition

 

📦 Expédition sous 35 jours après réception de l’acompte.


🚛 Livraison en France (tarif au km)

– Possibilité de 2 maisons par camion


📖 Notice d’assemblage détaillée incluse


👷 Travaux extérieurs : Terrassement, parking et réseaux à prévoir via un artisan local.

Contact / Devis / Catalogue 

Cliquez ci dessous